Al via i lavori di riqualificazione di piazza Manno
La piazza chiude al traffico per consentire l'esecuzione dei lavori finanziati con fondi del PNRR. Conclusione in 240 giorni
Data:
14 aprile 2023
Parte il progetto di riqualificazione di piazza Manno. Da martedì 18 aprile l’impresa Ghiaccio di Scano Montiferro inizierà le attività preliminari all’esecuzione degli interventi previsti dal Comune di Oristano e finanziati con fondi del PNRR per la riqualificazione di una delle più importanti piazze della città che sarà completata in 240 giorni.
Il programma dei lavori è stato presentato in conferenza stampa dal Sindaco Massimiliano Sanna, dagli assessori ai lavori pubblici e alla viabilità Simone Prevete e Ivano Cuccu, dall’ingegner Alberto Soddu, dirigente del settore Lavori pubblici e manutenzioni, e dal Comandante della Polizia locale Gianni Uras.
- Il Sindaco Sanna e gli Assessori Prevete e Cuccu
“Si tratta di una delle opere più attese dalla città che finalmente inizia a prendere forma – dice il Sindaco Massimiliano Sanna -. Piazza Manno è una delle piazze più importanti di Oristano, per la sua storia e per le testimonianze del più glorioso passato della nostra città, ma anche per il ruolo sociale che ha nel nostro contesto urbano. Come amministrazione siamo orgogliosi di far partire questa opera che sarà fondamentale nel processo di valorizzazione del centro storico cittadino. Allo stesso tempo chiediamo ai cittadini e agli operatori economici di avere pazienza per i disagi conseguenti alla chiusura al traffico della piazza, conseguente alla realizzazione dei lavori”.
“Oristano aspettava i lavori per la nuova piazza Manno da almeno un ventennio – aggiunge l’Assessore ai Lavori pubblici Simone Prevete -. È importante rilevare che tutti i lavori si svolgeranno alla presenza di un archeologo che seguirà l’eventuale rinvenimento di testimonianza archeologiche. Altrettanto importante è sottolineare che un’attenzione particolare sarà dedicata alle alberature che saranno tutelate”.
“In questa fase di avvio dei lavori abbiamo seguito con particolare scrupolo le soluzioni alternative al traffico veicolare e pedonale – sottolinea l’Assessore alla viabilità Ivano Cuccu -. Nostro compito è mettere in sicurezza i percorsi e assicurare percorsi alternativi con il traffico in ingresso verso il centro storico che sarà veicolato da via Solferino verso via Angioy e via Duomo”
- I lavori
L’impresa Ghiaccio si è aggiudicata i lavori con un ribasso del 21,465% sull’importo a base di gara di € 1.411.457, e pertanto per l’importo di € 1.089.652 oltre oneri della sicurezza pari ad € 23.984 e € 245.000 per IVA al 22%.
Il progetto, vincitore di un concorso di idee bandito dal Comune di Oristano e curato dal raggruppamento temporaneo di professionisti composto dagli architetti Piera Bongiorni, Alberto Becherini e Andrea Borghi, dall’ingegner Gianmichele Nieddu, dalla Sarda energia ambiente e dall’agronomo Niccolò Bianchi, parte dalla valorizzazione di alcuni temi:
- Usi – Ripensare fruibilità e vivibilità degli spazi aperti.
- Rapporto con il contesto – Pensare a una soluzione che si integri in una logica di connessione degli spazi pubblici; il progetto vuole mettere in collegamento Piazza Manno con gli altri spazi del centro storico di Oristano e con la città moderna.
- Integrazione e accessibilità – Prevedere una soluzione per un’utenza allargata anche per accessibilità e abbattimento delle barriere architettoniche.
- Comfort ambientale e rispetto dei criteri ambientali minimi – Migliorare le condizioni di comfort durante l’anno, ombreggiamento estivo e abbattimento di isole di calore, e sistema di illuminazione a basso consumo energetico.
- Verde – Prevedere un sistema che soddisfi esigenze ambientali e si integri nel contesto.
- Sostenibilità dei materiali – Impiegare materiali sostenibili a basso impatto ambientale che contribuiscano al miglioramento complessivo dell’area.
- Sicurezza – Considerare soluzioni attente alla sicurezza sostanziale e percepita, non ultima l’accessibilità ai mezzi di soccorso.
- Flessibilità – Pensare a spazi e arredi che permettano un uso diversificato nel tempo dello spazio pubblico (informazione, sosta, eventi come la Sartiglia, mercati ecc.).
- Gestione e manutenzione – Proporre una soluzione che consenta di contenere i costi di gestione e manutenzione con soluzioni semplici e materiali durevoli.
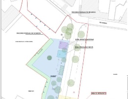
A partire da questi temi viene identificata una nuova conformazione dell’area tenendo conto della di volontà di ricucire i margini della piazza, valorizzando gli edifici pubblici e le emergenze architettoniche e i resti archeologici delle mura medievali, Port’a Mari e la Torre San Filippo. Il risultato è l’individuazione di un disegno globale definito da fasce in granito bianco sardo che scandiscono la superficie della piazza realizzata in lastre di basalto, con aiuole verdi che ospitano alberature e panchine semicircolari in legno. Il disegno della piazza crea un ambiente definito che ben si presta ad una completa futura pedonalizzazione con una porzione carrabile ad unico senso di marcia da via Cagliari verso via Vittorio Emanuele II.
Nel dettaglio, il progetto prevede la demolizione della pavimentazione stradale e della parte in pietrini di cemento esistenti, la rimozione della segnaletica stradale, complementi di arredo urbano (fioriere, sedute, dissuasori, fontanella), pali dell’illuminazione pubblica esistenti, edicola, la realizzazione di pavimentazione in lastre di basalto e granito, l’impianto di un nuovo albero e nuove specie arbustive, la realizzazione di panchina monolitica in granito intorno alle aiuole circolari, l’adeguamento dell’impianto di smaltimento delle acque meteoriche, un nuovo impianto di illuminazione e la posa in opera di nuovi elementi di arredo urbano (panchine, cestini portarifiuti, dissuasori, rastrelliere per biciclette). È previsto anche il rifacimento del sistema di rampa di accesso di granito bianco sardo alla scuola per integrarla nel nuovo disegno della pavimentazione facendo sì che anche l’accesso scolastico entri a fare parte integrante della Piazza.
- Le indagini archeologiche
A seguito di un incontro tra il Comune, la Soprintendenza Archeologica di Cagliari e i progettisti è stato deciso di concentrare le indagini archeologiche in prossimità dell’impianto di bonifica ambientale dell’Ex distributore di carburanti e delle mura del Carcere. Sarà riaperto lo scavo effettuato nel 2001-2002 e alla luce dell’esito delle nuove indagini si provvederà alla riqualificazione e valorizzazione dei resti. Le indagini sono state finanziate dalla Giunta Sanna con un finanziamento di 70 mila euro.
- Gli obiettivi
Attraverso la realizzazione del progetto di riqualificazione si potrà ottenere un miglioramento della fruizione fisica della piazza che grazie alla fluidità della nuova pavimentazione creerà uno spazio unico, interamente accessibile e privo di barriere. Dal punto di vista dei flussi e dei percorsi la regolamentazione delle aree di parcheggio permetterà di dare spazio alla mobilità dolce all’interno del perimetro e di controllare di conseguenza i percorsi e le aree carrabili al suo interno.
Il progetto contribuirà alla valorizzazione delle emergenze architettoniche presenti all’interno dell’area permettendone una completa fruizione visiva e una connessione dello spazio della piazza con gli edifici storici, in particolare per quanto riguarda le ex Carceri. Inoltre, il processo di conoscenza e promozione delle aree a tutela archeologica, che vede piazza Manno custode dei resti dell’antica Port’a Mari e della Torre di San Filippo, rappresenta uno dei punti fondamentali dell’intervento con la possibilità di inserire la nuova piazza all’interno di un progetto più ampio di valorizzazione delle aree archeologiche e delle testimonianze contenute al suo interno.
Infine, la scelta dei materiali utilizzati per la pavimentazione della nuova piazza, privilegia materiali e pietre locali (basalto e granito) consente la piena integrazione del progetto con i caratteri tipologici degli altri spazi pubblici limitrofi (pavimentazione verso via Vittorio Emanuele II) e con le piazze più importanti del centro storico di Oristano (piazza Duomo, piazza Roma, Torre di Portixedda, Piazza Eleonora etc) richiamandone gli aspetti materici e morfologici.
- La viabilità
Un’ordinanza detta le regole e le soluzioni alternative per il traffico durante l’esecuzione dei lavori.
L’ordinanza stabilisce, dal 18 aprile 2023 al 31 dicembre 2023
- nella Piazza Manno:
- istituzione del divieto di circolazione e sosta con rimozione coatta dei veicoli in sosta vietata per tutte le categorie di veicoli nel tratto interessato dai lavori
- autorizzazione alla circolazione e alla sosta dei veicoli strumentali ai lavori;
- istituzione di 3 stalli per la sosta dei veicoli, nel tratto non interessato ai lavori da utilizzare con disco orario per periodo massimo di 15 minuti;
- nei giorni feriali dalle 8 alle 9 e dalle 13 alle 14:30 istituzione di stalli di sosta, da utilizzare con disco orario per un periodo massimo di 15 minuti nelle seguenti vie:
- a) Via Vittorio Emanuele II, nel tratto compreso tra Piazza Manno e Piazza Giovanni Paolo II, con esclusione degli stalli riservati alla sosta dei ciclomotori e dei motocicli, alla sosta riservata ai veicoli adibiti al carico – scarico merci e ai veicoli riservati al servizio delle persone invalide con deambulazione impedita o sensibilmente ridotta presenti nel tratto di strada indicato;
- b) nella Via G. M. Angioy, nel tratto compreso dall'intersezione con il Vico Martignano fino all'intersezione con la Piazza Manno e la Via Crispi;
- deroga al divieto di transito nella Z.T.L. nella Via Montenegro e nella Via Angioy, nel senso e tratto da Via Montenegro fino Piazza Manno;
- la deroga di cui al punto 3 non si applica ai veicoli aventi massa a pieno carico superiore alle 3,5 tonnellate e/o sagoma superiore a quella indicata dalla segnaletica stradale;
- nella Via G. M. Angioy, lato numeri pari, nel tratto compreso dall'intersezione con Via Montenegro fino all'intersezione con Via La Pace, istituzione del divieto di sosta e fermata
- i divieti, in ogni singolo tratto di strada, entrano in vigore dopo l’esposizione della segnaletica stradale;
- la circolazione stradale, veicolare e pedonale, verrà regolata con apposita segnaletica e in caso di necessità con la presenza di operatori movieri dotati dei dispositivi di segnalazione di alta visibilità stradale, muniti di segni di riconoscimento.
Nei tratti interessati dai lavori sarà garantito il passaggio ai pedoni con particolare riguardo alle persone disabili, con spazio dedicato e messa in sicurezza rispetto all’area di cantiere.
Ultimo aggiornamento
21/04/2023, 11:10
Contenuti correlati
Novità
- Apre il Centro intermodale. Martedì 6 giugno l'inaugurazione
- Cimiteri, via Marconi, piani personalizzati legge 162. Le risposte della Giunta alle interpellanze
- I passaggi a livello di via Ozieri e via Laconi saranno eliminati per fare spazio a due rotonde
- Consiglio comunale - Approvato il progetto per la rotonda all'ingresso nord
- Apre ufficialmente la nuova Piazza Ungheria
Documenti e dati
- Approvata la graduatoria provvisoria per l'assegnazione in locazione degli alloggi E.R.P.
- Lavoras - Entro il 22 aprile le domande per i cantieri di nuova attivazione
- Bando di gara per l’affidamento del servizio di telesorveglianza e vigilanza degli immobili comunali
- Indagine di mercato per la selezione di operatori economici per lavori per edifici civili e industriali
- Manifestazione di interesse per affidamento di servizi di ingegneria e architettura
Comune di Oristano






